Sie sind hier: NFT-SL Fassadentechnik - Fassadensysteme montagefreudlich » Rückseitige Befestigung » Rückseitiges System 800
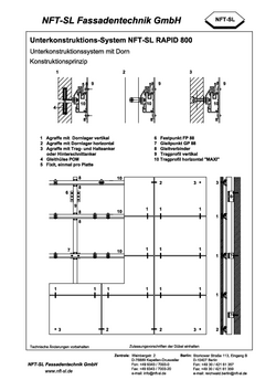
Unterkonstruktions-System NFT-SL RAPID 800

PDF: NFT-SL RAPID 800
Unterkonstruktions-System NFT-SL RAPID 800 Unterkonstruktionssystem mit Dorn - Konstruktionsprinzip
Dateigröße: 632 KB
Frage zum Produkt/Download?
