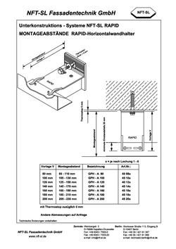
Sie sind hier: NFT-SL Fassadentechnik - Fassadensysteme montagefreudlich » Wandhalter » Wandhalter RAPID GPH Wandhalter RAPID GPH PDF: Wandhalter RAPID GPHWandhalter RAPID GPHDateigröße: 121 KBDownload PDFPer Mausklick herunterladenDateigröße: 121 KBFrage zum Produkt/Download?